| 
![]() Traditional and Computer Aided Design and Graphics Los Angeles, California, USA, Terra, Solar System Sol, Milky Way Galaxy, Local Group, Virgo Super Cluster, Local Universe  | 
 
 | 
| 
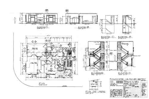
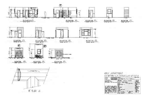
An apartment typical of early 20th Century San Francisco. All these drawings are traditional pencil drafting. 2000 Note: These drawings are presented here for portfolio purposes only. These drawings are not available for sale or to be given away in hard copy or digitally in any scale. I will be happy to show hard-copy during a legitimate job interview for Set Designer.  | 




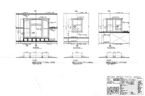
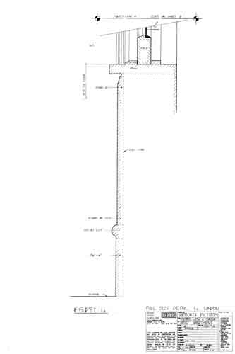
![]() Full size detail of window.  | 
![]() Full size detail of window.  | 
![]() Full size detail of window.  | 
![]() Full size detail of window.  | 


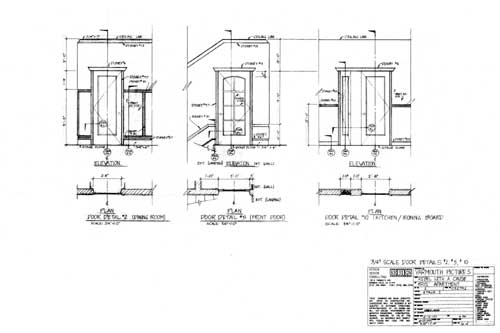
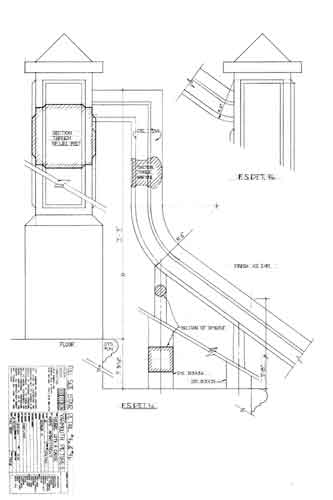
![]() Full size detail of door.  | 
![]() Full size detail of door.  | 
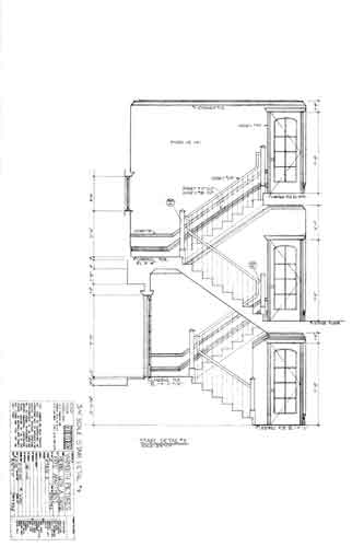
![]() 3/4" detail of main stair.  | 
![]() Full size detail of main stair.  | 
 
 | 
 
 | 
 
 | 
 
 | 
Copyright © 2000 - 2023, Kenneth A. Larson.  All Rights Reserved. Website content including photographic and graphic images may not be redistributed for use on another website.  | 
 
 | 
 
 | 
 
 |