Kesign Design Consulting
Traditional and Computer Aided Design and Graphics
Los Angeles, California, USA, Terra, Solar System Sol, Milky Way Galaxy, Local Group, Virgo Super Cluster, Local Universe

Theme Architecture / Interior Designer

Have you ever thought it would be fun to live in a film or TV set. Have you dreamed of your home theater designed like a star ship bridge? Or your recreation room like a western street. I had one client who wanted an Old London home theater lobby. In school, a project was a space theme restaurant and another project was two options, "Enchanted Grotto" and "Rat Cellar" hangout. I was once asked to do a volcano for the center of a store. Any Interior Designer can put western art into your "western" style livingroom, but you need a Set Designer to make your livingroom look like it's in a western. How about the drawings for a mailbox or birdhouse to match your house. Would you like a custom snow globe?

I've been designing and building scenery for TV and movies for over 40 years, working for most major studios in the Hollywood area. I've worked on theme parks for Walt Disney Imagineering, Universal Studio Tours, Paramount Studios, and others

I am winding down from the entertainment industry, but still love designing scenery and would love to design a theme interior or exterior for your residential or commercial project.

Contact


Note: These drawings are presented here for portfolio purposes only. These drawings are not available for sale or to be given away in hard copy or digitally in any scale. I will be happy to show hard-copy during a legitimate job interview for Set Designer.


A star ship bridge built in an exisitng room to use as a home theater, concept.

Old Lundon theme home theater lobby. Old Lundon theme home theater lobby.
Old Lundon theme home theater lobby.

Old Lundon theme home theater lobby, construction. Old Lundon theme home theater lobby, construction.

Old Lundon theme home theater lobby, construction drawings.
Old Lundon theme home theater lobby, construction drawings.

Play Houses
Several years ago, I made three drawings of custom play houses for an Interior Designer. It was her hope to market these, but it didn't work out. For you, I can design theme play houses that you can build yourself or hire a local carpenter.

The client bought two Star Trek control panels at auction and asked me to design a concept for a desk in which to install them. The desk was built in Canada, I never saw it completed.

Star Trek-like living room. Unfortunately, this project faded away and was never completed.


Table

Entry
Star Trek-like living room.
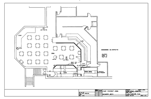
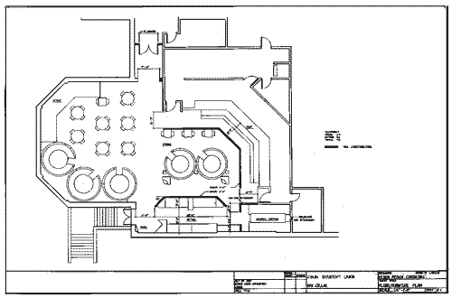
Rat Cellar.
Rat Cellar. This was an Interior Design college project to design a space for students to 'hang out'. The class project was code named "Rathskeller" which I reinterpreted as Rat Cellar and that became my theme. I also submitted a more conventional design (below), the Enchanted Grotto. Years later, I walked my dog past the space and noted it was a gym.

Enchanted Grotto.
Enchanted Grotto. This was an Interior Design college project to design a space for students to 'hang out'. I made two designs, the other (above) being more fanciful, so I also made this one more conventional.


Space Bucaner Restaurant, waiting area, restrooms, office.

Space Bucaner Restaurant waiting area, restrooms, office.


E-mail
Top Back Home
Web Design by Kenneth A. Larson This site maintained by Kenneth A. Larson.
Copyright © 2000 - 2023, Kenneth A. Larson. All Rights Reserved.
Website content including photographic and graphic images may not be redistributed for use on another website or any other medium.
Please Don't Pirate Videos
This page last updated: Monday, 23-Jun-2025 20:00:43 PDT
Valid HTML 5 Transitional Valid CSS!